オール電化 令和1年6月築 西区玉津町高津橋 良質戸建

3,480万円

兵庫県神戸市西区玉津町高津橋993-6

山陽本線「明石」駅バス13分「大谷」停歩8分

価格
3,480万円
間取り
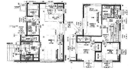
3SLDK
土地面積
133.12㎡
所在地
兵庫県神戸市西区玉津町高津橋993-6
交通

山陽本線明石」駅 バス13分 「大谷」 停歩8分

建物面積
93.74㎡
築年月
2019年6月(築6年)

物件の特徴

  • TVモニタ付きインターホン

  • 独立洗面台

セールスポイント

他社圧倒のご提案を致します!賃貸よりもお得に初期費用抑えられる自己資金0円プランご用意しております!地域を知り尽くした我々にお任せください。詳細は0120-337-279までお問い合わせください!!!

基本情報

販売戸数
-
総戸数
-
間取り / 詳細
3SLDK
LDK 18.0帖 1室/洋室 4.5帖 2室/洋室 7.5帖 1室
向き
西
建物面積(坪数)
93.74㎡(28.35坪)
土地面積(坪数)
133.12㎡(40.26坪)
建ぺい率 /
容積率
40%/80%
築年月
2019年6月(築6年)
土地権利
所有権
土地
(敷金 / 保証金)
- / -
建物構造
木造 / 2階建
傾斜地部分面積
-
路地状敷地
-
私道負担面積
-
セットバック
高圧線下面積
-
施工会社
-
用途地域
第一種低層住居専用
地目 / 地勢
宅地 / 平坦
接道状況
一方(西 公道 6.0m)
国土法届出要否
不要
都市計画
市街化区域
総区画数 /
販売区画数
-/-
現況
居住中
その他
法令上の制限
-
取引態様
一般媒介
引渡し
相談
取引条件の
有効期限
2026年02月22日

設備条件

設備条件
  • フローリング / バルコニー / 公営水道 / 公共下水 / オール電化 / IHクッキングヒーター / コンロ2口以上 / システムキッチン / コンロ3口 / 洗髪洗面化粧台 / 独立洗面台 / 床暖房 / 床下収納 / TVモニタ付インターホン
設備(その他)
    -

その他

物件番号
83356334
管理コード
-
建築確認番号
-
情報更新日
2026年02月08日
次回更新予定日
2026年02月22日
取扱会社
  • 株式会社Bond Housing
  • 兵庫県明石市大道町2丁目8-28 
  • TEL:0120-337-279
  • 兵庫県知事 (1) 第401717号
  • 公益社団法人 全日本不動産協会会員
    公益社団法人不動産保証協会
    公益社団法人 近畿地区不動産公正取引協会加盟
備考
住宅+500 諸費用・リフォーム費用を含めて自己資金無しで購入可能♪借入をおまとめして新生活始めてみませんか?中古住宅の保証・保険は当り前の時代に。ボンドハウジングは安全・安心のご提案をします「建物検査」・建築士が(構造・雨漏り・給配水管、シロアリ、家の傾き)を調査します(調査報告書・適合証明書)を発行・条件を満たせば中古住宅でも最大5年・1000万円の瑕疵保険が付きます(詳細は担当にお伺い下さい

周辺施設

  • 高津橋小学校の画像

    小学校

    高津橋小学校

    721m(10分)

  • 玉津中学校の画像

    中学校

    玉津中学校

    1365m(18分)

支払いシミュレーション

月々の支払額
9.6
購入希望物件価格
万円
頭金
万円
金利
%
返済額(ボーナス1回分)
万円
返済期間

※ボーナスは自動で年2回分で計算されます。

近隣の物件

  1. BELS取得物件 糀台1丁目 新築2区画 2号棟

    神戸市西区糀台1丁目

    3SLDK (90.72㎡)

    4,880万円

  2. LDK約18帖・安心の長期優良住宅 玉津町新方

    神戸市西区玉津町新方

    4LDK (91.70㎡)

    3,490万円

  3. 長期優良住宅 糀台1丁目 新築2区画 1号棟

    神戸市西区糀台1丁目

    3LDK (92.34㎡)

    4,380万円

  4. お車3台駐車可・小中学校約10分圏内 玉津町出合 築26年

    神戸市西区玉津町出合

    3LDK (85.00㎡)

    2,490万円

オール電化 令和1年6月築 西区玉津町高津橋 良質戸建

オール電化 令和1年6月築 西区玉津町高津橋 良質戸建

3,480万円

-

3SLDK(93.74㎡)

お気軽にお問い合わせください

無料お問い合わせ

株式会社Bond Housing

0120-337-279

9:00~20:00

(休:年中無休(水曜日要予約))